DIY超便宜衣帽間 看80后屋主打造實用環保小屋

DIY超便宜衣帽間 看80后屋主打造實用環保小屋 2021-07-23挑選家具,室內設計真簡單

這次小編為大家帶來的是一套超實用兩居室小戶型。屋主對環保的關注可謂是執念。于是,在裝潢新家時,環保成了貫穿每個環節的第一要素。盡管這是屋主第一次,也可能是人生唯一一次裝潢,但好在慢慢研究下,終于做到了環保與美觀並重,價廉與物美共存。這套案例的亮點在于,人人都夢想的衣帽間居然是自己DIY打造的,神奇嗎?來看看!

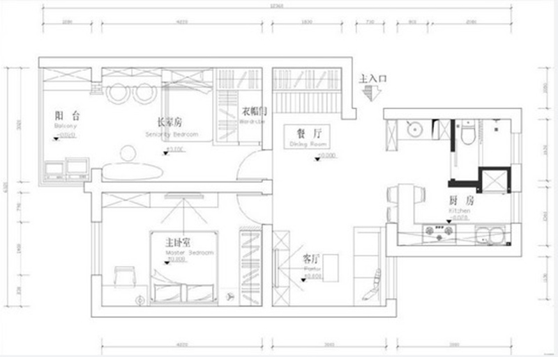
使用面積:56㎡

費用:硬裝8萬,軟裝+家具+家電7萬,合計15萬

房型:兩室兩廳一廚一衛

特點:玻化磚砌櫥櫃、干區流水藝術臺盆、DIY超便宜的衣帽間和衣櫥

客廳:

進門以后正對著客廳,兩邊是餐廳(卡座)和干區。墻壁上還空空蕩蕩的,軟裝一點點慢慢進行,隨著生活的不斷積淀而記錄下走過的腳印。

卡座區:

本來是一個很深的餐廳,但是考慮到目前只有兩個人,吃飯大多在吧臺,餐廳的面積有點浪費,因此把餐廳分為兩部分,卡座后面是一個頂天立地的大櫥,可以收納衣物哦!

廚房:

木制櫥櫃是家裝中最不環保的一個方面,不論整體櫥櫃商宣稱的多么環保的板子,其本質都是刨花板。刨花板里都是膠水,膠水就含有甲醛,因此整體櫥櫃往往買來很久以后打開都有味道,對健康十分有害,同時防水防潮性也不夠。因此我堅決不用刨花板做的整體櫥櫃,所以研究了很久以后,決定用玻化磚做磚砌櫥櫃。

吧臺:

對于不怎麼做飯的80后來說,裝一個吧臺是很適合的選擇。

主臥:

跟客廳一樣墻面是白駱駝色,淡淡的暖意,配上深咖啡色的純榆木家具,溫馨中又帶著質感。

次臥兼書房:

因為這個房間聯通陽臺,空間上本來就顯得大,因此在進門處隔出來一個步入式衣帽間。正對門放一個坐臥兩用床,另一面墻是雙人書桌和書櫥。

衣帽間:

同樣里面也是采用隔板制作,價廉物美無污染。在尺寸上,為了能夠“步入”,同時又不占用太多空間使得次臥面積過小,經過了無數次的精確實驗以及實地測算。最后使得這個衣帽間“麻雀雖小五臟俱全”。用下來感覺,在空間的使用上,衣帽間還是遠勝于大衣櫃的,除了收納換季的衣服被子,還有行李箱、各種雜物什麼的堆放,實在是“很能裝”。

陽臺:

一邊是放置了水槽,用來洗洗抹布澆澆花什麼的(舍不得在流水臺盆洗抹布啊,感覺就像往小溪里傾倒工業廢水一樣)。旁邊預留了洗衣機龍頭和地漏,準備以后可能會在這兒擺一個小洗衣機,用來洗洗內衣或者寶寶的小衣服什麼的。

未經允許不得轉載:裝潢設計不求人-家具室內裝潢資訊網 » DIY超便宜衣帽間 看80后屋主打造實用環保小屋